Pnrr: A Campobello un finanziamento di 837mila euro per il CCR

Si tratta del sesto progetto finanziato. Il grande impegno profuso dalla nostra Amministrazione continua a dare i frutti

Redazione Prima Pagina Castelvetrano
Redazione Prima Pagina Castelvetrano
15 Aprile 2023 08:00
Pnrr: A Campobello un finanziamento di 837mila euro per il CCR

Il sindaco Giuseppe Castiglione esprime soddisfazione per l’ottenimento, da parte dell’Amministrazione comunale, di un finanziamento di 837mila e 611 euro che saranno destinati al potenziamento del Centro Comunale di Raccolta Rifiuti (CCR).

Con decreto n.128 del 21 marzo scorso del Ministero dell’Ambiente – Dipartimento Sviluppo Sostenibile, il Comune di Campobello è stato, infatti, ammesso al finanziamento erogato dall’Unione Europea, nell’ambito del PNRR.

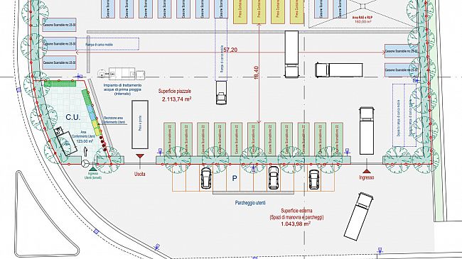
Dopo l’apertura, nel mese di dicembre scorso, del CCR all’interno del piazzale Birribaida, all’ingresso di Campobello, l’Amministrazione comunale ha, dunque, ottenuto un nuovo finanziamento che consentirà di ampliare e di potenziare i servizi resi all’interno dell’isola ecologica.

Oltre alle “tradizionali” attività di conferimento con il presidio di operatori ecologici, il nuovo progetto prevede anche l’accesso informatizzato e automatizzato h24 da parte dell’utenza attraverso l’utilizzo di isole ecologiche automatiche dotate di sistemi di riconoscimento dell’utenza, di individuazione e pesatura del rifiuto conferito e di registrazione di ogni singolo conferimento.

La nuova struttura, che si estenderà su una superficie di 3500 mq, consentirà dunque di migliorare ulteriormente il sistema di smaltimento dei rifiuti nel territorio comunale, incrementando le percentuali di differenziata, con conseguente abbattimento delle emissioni di gas serra.

All’interno del CCR sarà, inoltre, realizzato un info-poit con l’obiettivo di fornire all’utenza tutte le informazioni necessarie per la corretta differenziazione dei rifiuti e per la distribuzione o eventuale sostituzione delle attrezzature per la raccolta.

«Il grande impegno profuso dalla nostra Amministrazione comunale nell’Ambito del PNRR continua a dare i suoi frutti – dichiara il Sindaco Castiglione – In tutta la provincia di Trapani solo Campobello e un altro comune hanno infatti ottenuto questo importante finanziamento da parte del Ministero dell’Ambiente.

Si tratta, tra l’altro, del 6° finanziamento che otteniamo partecipando ai bandi del Piano Nazionale di Ripresa e Resilienza e siamo in attesa degli esiti degli altri 9 bandi a cui abbiamo partecipato per un importo complessivo di circa 25milioni di euro. Contiamo, infatti, di intercettare finanziamenti che ci consentirebbero di migliorare notevolmente la qualità della vita nel nostro Comune ed il potenziamento del CCR rappresenta un obiettivo importante per mantenere il territorio pulito».

Ti piacciono i nostri articoli?

Non perderti le notizie più importanti. Ricevi una mail alle 19.00 con tutte le notizie del giorno iscrivendoti alla nostra rassegna via email.

In evidenza